Badestra_E 80_ Whg_ 8_ Goting Hus
Preview only — see all hotel photos
See all 17 photos 1 /
17
8.2
5 yorum
Best options for your travel dates
Oteli haritada göster
Badestra_E 80_ Whg_ 8_ Goting Hus
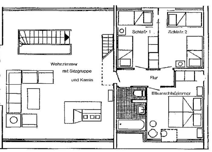
Badestra_E 80_ Whg_ 8_ Goting Hus Daire dairesi, Robbenzentrum Föhr'a yaklaşık 1 km uzaklıktadır. Misafirlere 0 yatak odası sunulmaktadır.
Olhorn Lighthouse ve Spielplatz Lowenhohle gibi Wyk auf Föhr şehrinin görülecek yerleri yakındır. Bu daire, Wyk Hafen'a yürüyerek 19 dakika uzaklıktadır. Misafirler, yemek için 500 metre uzaklıkta bulunan ve Asya mutfağından yemekleri sunan suşi bar Fohrer Fisch Restaurant adlı restoranı seçebilirler. St.-Johannis-Kirche'a arabayla hızlı bir şekilde ulaşabilirsiniz.
Sudstrand/Schloss am Meer otobüs durağına 5 dakikada yürünür.
Daha fazla +
Daha az -
Bekleyin lütfen, sizin için müsait odaları arıyoruz.
Otelleri arıyoruz
Kolaylıklar
Genel Olanaklar
- Wi-Fi
- Evcil hayvan kabul edilmez
Olanaklar
Genel tanıtım:
- Tesis genelinde sigara içilemez
- Wi-Fi
- Otopark
- Evcil hayvan yasaktır
- Duman dedektörleri
Oda imkanları:
- Çamaşır makinesi
- CD çalar
Konaklama Politikası
Giriş: 06:00-21:59 arası
Çıkış: 09:00'a kadar
Harita
Turistik Yerler
Turistik yerler
- Wrixumer Muhle (1775 km)
- Parkbuhne (4712 km)
- Ferry docks (1,3 km)
- August Endell (868 km)
- St. Johannis auf Föhr (4746 km)
- Speedboat harbour (1,5 km)
- Nieblumer Windsurfing Schule (4598 km)
- St.-Johannis-Kirche (4619 km)
Havalimanları
- Westerland Sylt Havaalani (118 km)
Yorumlar
Yorum yaz
%100 Doğrulanmış Yorumlar
8.2 /10